Modern Farmhouse Charm
When this family reached out to us, they had a clear vision: transform their home into a modern farmhouse haven, with the renovation as stage one and an addition to follow. They dreamed of warm wooden touches, open shelving that invited both function and beauty, and custom cabinetry that would make the space truly their own. And they wanted to stay in their home throughout the entire process.
The Challenge
Live-in renovations sound simple until you factor in a working kitchen. For this Markham family, the kitchen was non-negotiable. Life had to keep moving: meals, homework, routines. Any plan that took their kitchen offline for weeks was a dealbreaker.
On top of that, they were thinking long-term. The renovation was designed as the first phase, with a home addition planned to follow once the main floor was complete. That meant every decision had to account for what came next, not just what looked good right now.
Our Approach
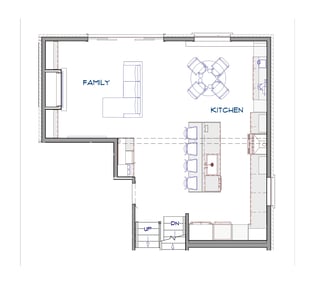
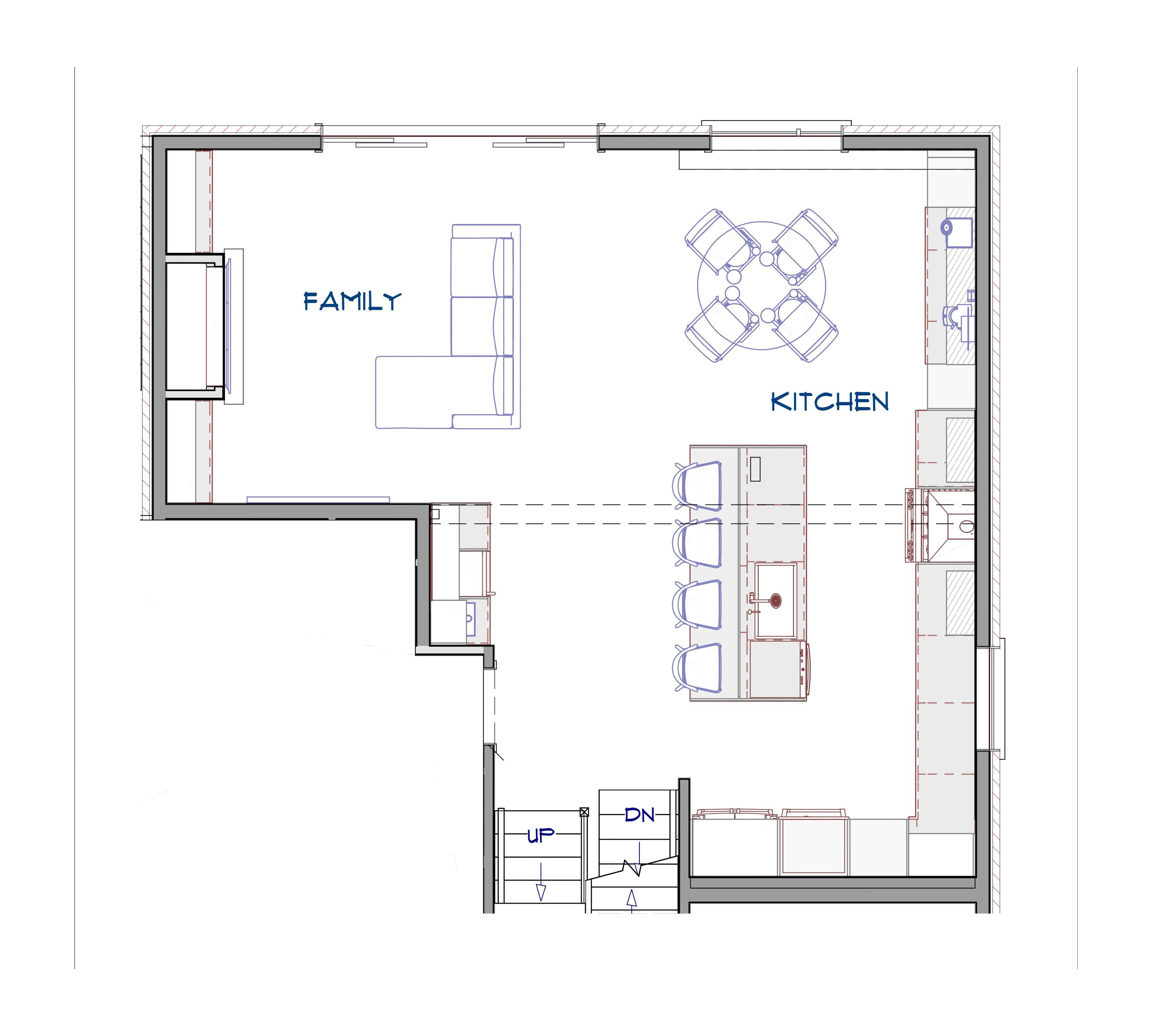
We designed a carefully staged renovation that kept their existing kitchen fully functional throughout. Rather than gutting everything at once, we shifted the new kitchen and living room to the back split level while we worked on the lower level. The family stayed in their home the entire time, cooking, living, and making memories, while we built around them.
Once the new kitchen was complete and the family had transitioned into it, we transformed the original kitchen space into an open home office with integrated storage, repurposing the existing cabinetry rather than discarding it. Practical, budget-conscious, and zero waste.
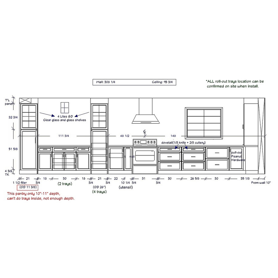
The design centres on warm wood throughout: open shelving that holds both everyday items and the things worth displaying, custom cabinetry with clean lines, and a layout that finally makes the main floor feel connected rather than compartmentalized.
The Result
The home now balances rustic charm with modern convenience, where every wooden detail reflects thoughtful craftsmanship and a renovation process that respected both the family's vision and their daily rhythm.
And here is the part we love telling: now that the renovation is complete, the clients are reconsidering the planned addition entirely. They do not need it. We have said it many times that people often do not need more space, they need more functional space. This project is a perfect example of that. Their transformed home already gives them everything they were hoping an addition would provide.
